ID CP2825068

SE INCHIRIAZA SPATIU COMERCIAL I HALA I SUCEAVA I 300mp I 2250Eur/Luna

ID CP2825068

2,250 € + 21% TVA

Spațiu comercial de închiriat
Scheia
300 mp

Închiriere Spațiu Comercial/Hală 300 mp – Ideal Clinică, Birouri sau Producție – Suceava

* * Disponibilitate: Începând cu ianuarie 2026 * *

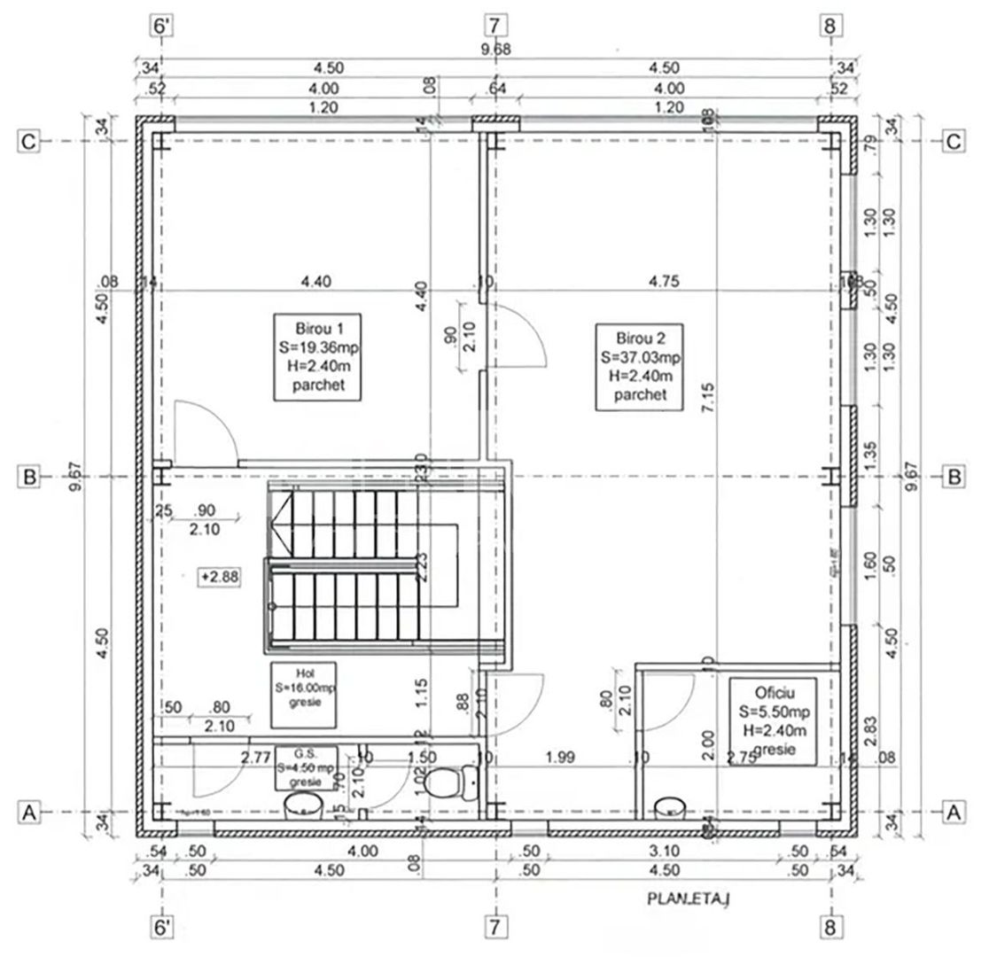
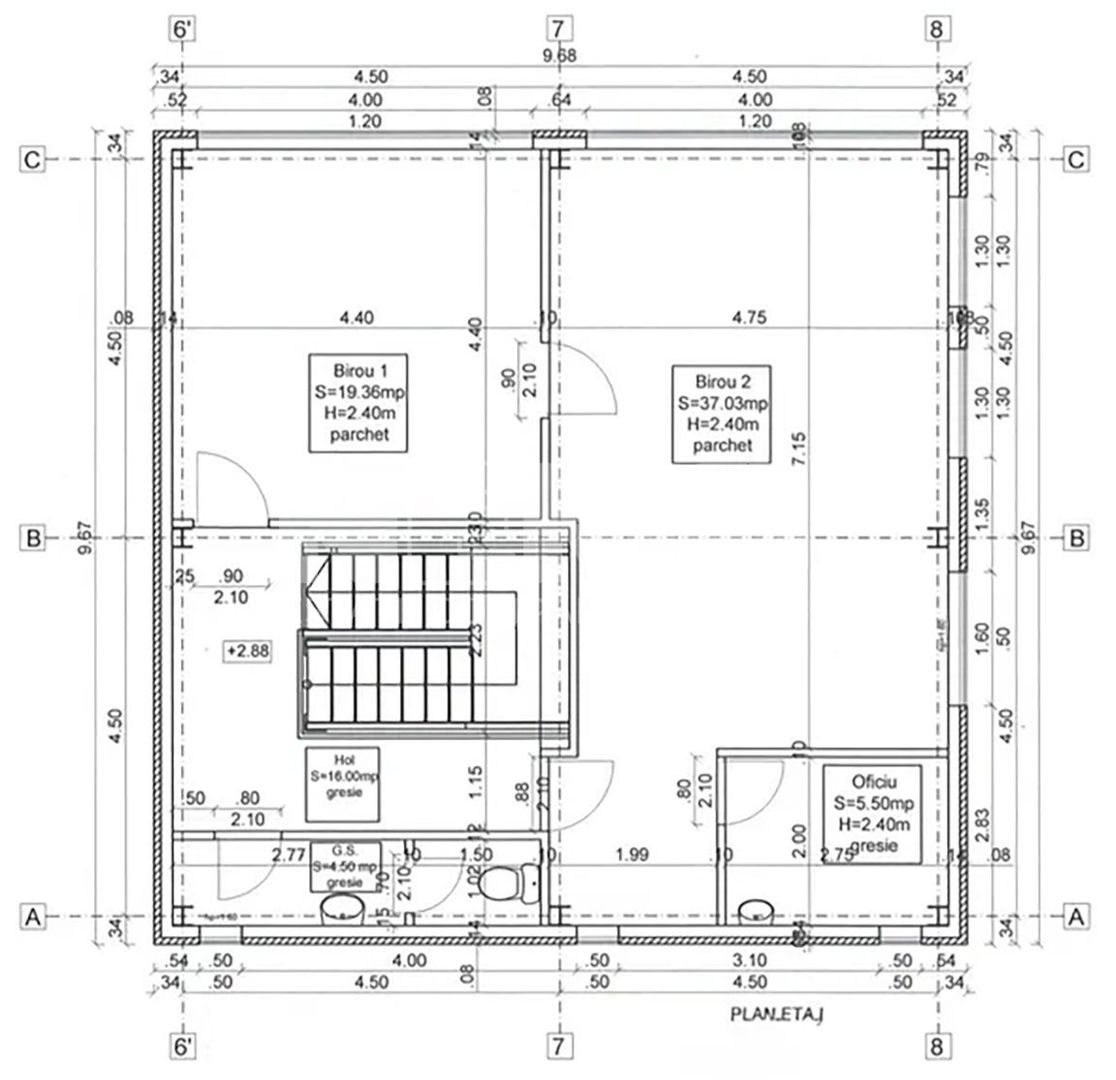
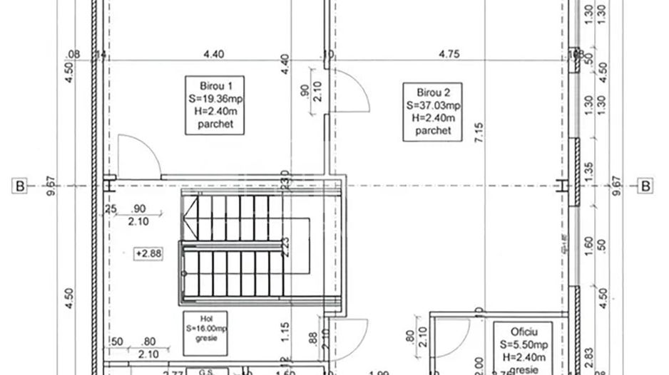
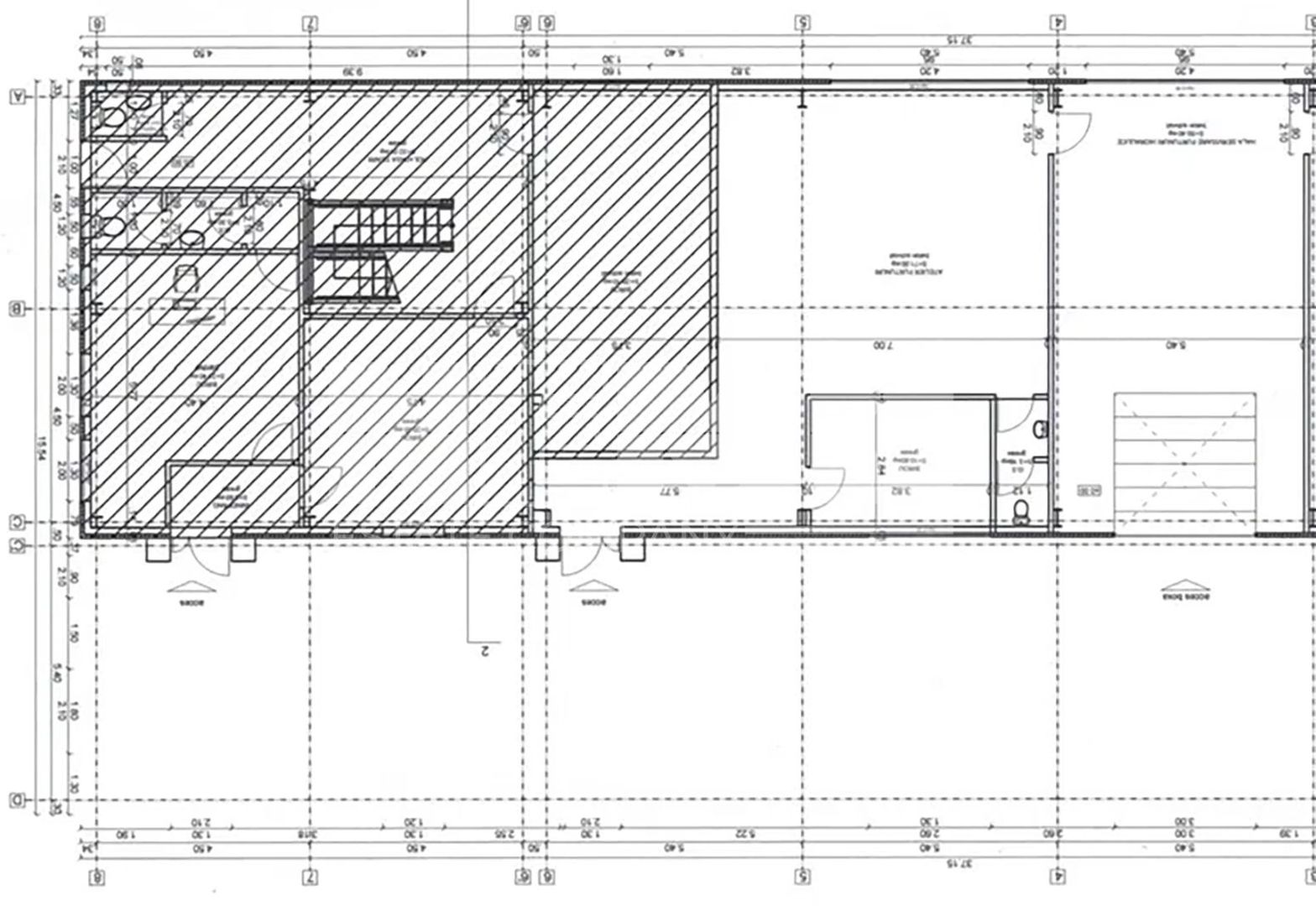
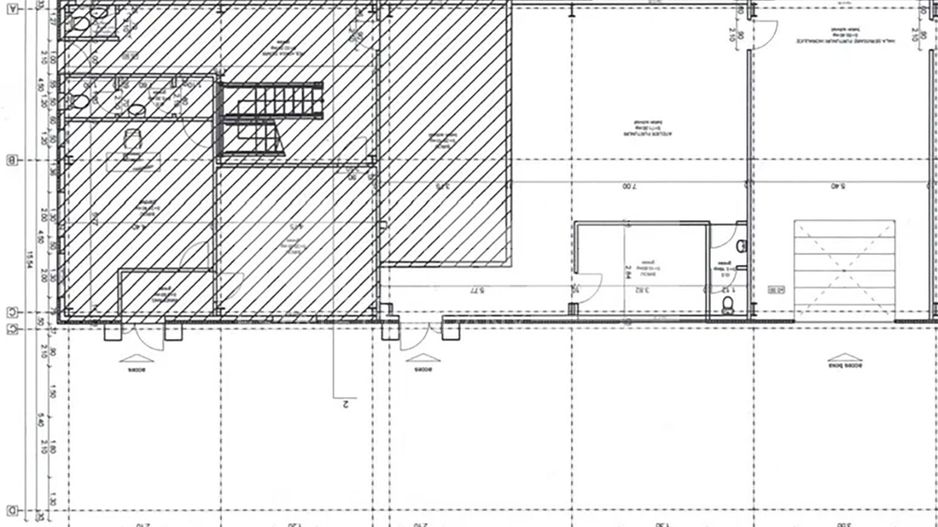
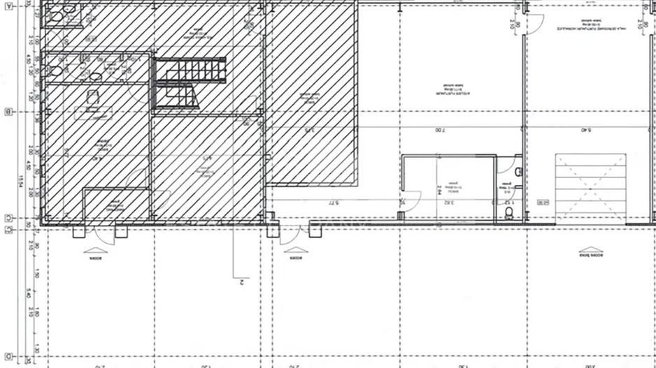
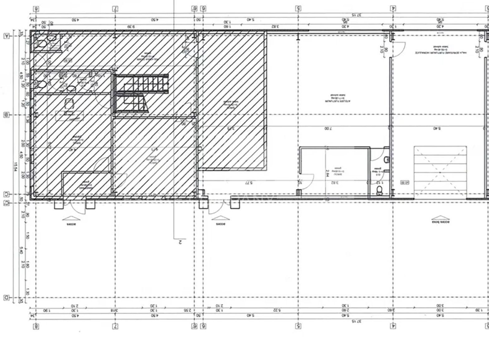
Descriere: Oferim spre închiriere un spațiu versatil și modern, situat într-o poziție excelentă în orașul Suceava. Clădirea este izolată termic și se pretează pentru diverse activități, de la spații comerciale, showroom sau clinică medicală, până la birouri open-space sau activități de producție ușoară.

Detalii Spațiu:

Suprafață totală: 300 mp (din care 70 mp situați la etaj).

Compartimentare: Open space, cu posibilitatea de compartimentare interioară completă după nevoile chiriașului.

Dotări: Hală izolată, toate utilitățile disponibile (apă, gaz, curent, canalizare).

Facilități Exterioare:

Parcare: 10 locuri incluse, cu posibilitate de suplimentare la cerere.

Acces: Facil atât pentru autoturisme, cât și pentru camioane/TIR.

Curte: Curte interioară generoasă, ideală pentru logistică sau parcare clienți.

Condiții de Închiriere:

Disponibilitate: Începând cu ianuarie 2026.

Bonus: Se oferă 1 lună perioadă de grație (gratuită) pentru amenajarea spațiului conform specificului activității dumneavoastră.

Pentru mai multe detalii sau pentru a stabili o vizionare preliminară

Citește mai mult

  • Tip imobil
    Hală
  • Trafic pietonal
    Moderat
  • Suprafață utilă
    300 mp
  • Front stradal
    25.0 m
  • Disponibilitate
    Imediat
  • Număr locuri parcare
    10
  • Construcție nouă
    Da

Facilități

Acces secundar marfă
Afișare logo pe clădire
Apă
Canalizare
Curent
Gaz
Parcare deschisă
Utilități în zonă
Secretariat Nemo - NEMO Estate
Secretariat Nemo
Front Office

0747 532 559


Solicită chiar acum o vizionare
Telefon
Sună acum Solicită vizionare
Necesare:

Site-ul nu poate funcționa corect fără aceste cookie-uri. Vezi cookie-urile

Statistică:

Strângem statistici anonime despre voi, vizitatorii unici, pentru a vă îmbunătăți experiența dumneavoastră. Vezi cookie-urile

Marketing:

Pentru a ne promova mai eficient serviciile noastre, folosim cookies pentru a vă identifica și a vă oferi proprietăți și servicii personalizate. Vezi cookie-urile

Acest site folosește cookies, află detalii. Alege ce tipuri de cookies dorești să permitem: